Request Call Back:

+91 8104487994

Project Details

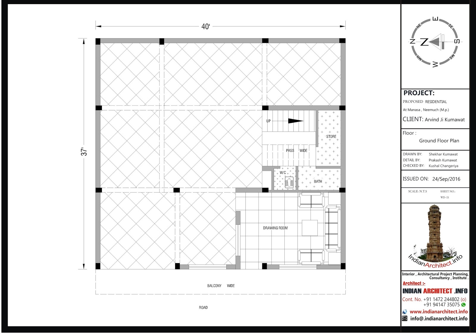
P251 MR. Arvind Ji Kumawat , 1480.00 sqft

Plan Description

Floor Description

BHK: 5BHK



GET FREE CONSULTATION

Project Description :